| Sign In | Join Free | My webtextiles.com |
|
Brand Name : SUNNY
Model Number : SN-XDYW
Certification : 3C,CE
Place of Origin : China
MOQ : 1 Pcs
Price : $7000~12000
Payment Terms : Western Union, T/T, L/C,Paypal
Delivery Time : 15~30 days
Packaging Details : container
Supply Ability : 500 Set/ Year
Name : Machine roomless elevator
Load(kg) : 630~1600kg
Velocity : 1.0~1.75m/s
Door Opening Width : 800~1100mm
Used : Elevator
Flooring : PVC
Keywords : Passenger Elevator Lift
Warranty : 12 months after shipping
Model : High Speed Elevator
Type : High Speed Elevator
Product name : High Speed Elevator
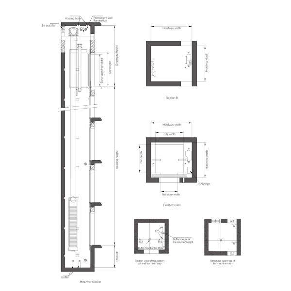
Machine roomless elevator construction Velocity 1.0~1.75m/s / Load(kg) 630~1600kg
High Speed Elevator Machine Room Less Elevator Load 630~1600kg
Counterforce unit:N
| Load(kg) | 630 | 800 | 1000 | 1250 | 1350 | 1600 | |||||||||||||
| Velocity | 1.0 | 1.6 | 1.75 | 1.0 | 1.6 | 1.75 | 1.0 | 1.6 | 1.75 | 1.0 | 1.6 | 1.75 | 1.0 | 1.6 | 1.75 | 1.0 | 1.6 | 1.75 | |
| Machine room counterforce | R1 | 43000 | 49000 | 6600 | 74000 | 76000 | 85000 | ||||||||||||
| R2 | 34000 | 40000 | 42000 | 46500 | 47500 | 49500 | |||||||||||||
| Pit counterforce | cabin | 76000 | 87000 | 89000 | 2x66000 | 2x68500 | 2x76500 | ||||||||||||
| Counterweight | 64000 | 71000 | 75000 | 105000 | 111000 | 120500 | |||||||||||||
| Rail counterforce | R1 | 55000 | 62000 | 70000 | 65000 | 67000 | 74000 | ||||||||||||
| R2 | 45000 | 51500 | 60000 | 46500 | 48000 | 51500 | |||||||||||||
| R3 | 52000 | 60000 | 66000 | 37500 | 38000 | 40500 | |||||||||||||
SN-XDYW machine roomless elevator parameter table
| Specifications | Load (kg) | Velocity (m/s) | Door Opening Width JJ(mm) | Size of car AA*BB(mm) | Pit Depth PD(mm) | Top Floor Height OH(mm) | Size of hoistway AH*BH(mm) |
| SN-XDYW-630-1.0 | 630 | 1.0 | 800 | 1100x1400 | 1450 | 3950 | 1800x1800 |
| SN-XDYW-630-1.6 | 1.6 | 1550 | 4100 | ||||
| SN-XDYW-630-1.75 | 1.75 | 1600 | 4150 | ||||
| SN-XDYW-800-1.0 | 800 | 1.0 | 1300x1400 | 1450 | 4150 | 2000x1800 | |
| SN-XDYW-800-1.6 | 1.6 | 1550 | 4200 | ||||
| SN-XDYW-800-1.75 | 1.75 | 1600 | 4200 | ||||
| SN-XDYW-1000-1.0 | 1000 | 1.0 | 900 | 1500x1500 | 1450 | 4100 | 2200x1900 |
| SN-XDYW-1000-1.6 | 1.6 | 1550 | 4200 | ||||
| SN-XDYW-1000-1.75 | 1.75 | 1600 | 4200 | ||||
| SN-XDYW-1250-1.0 | 1250 | 1.0 | 1100 | 1800x1500 | 1500 | 4300 | AHx1950 |
| SN-XDYW-1250-1.6 | 1.6 | 1600 | 4400 | ||||
| SN-XDYW-1250-1.75 | 1.75 | 1650 | 4400 | ||||
| SN-XDYW-1350-1.0 | 1350 | 1.0 | 1950x1500 | 1500 | 4300 | AHx1950 | |
| SN-XDYW-1350-1.6 | 1.6 | 1600 | 4400 | ||||
| SN-XDYW-1350-1.75 | 1.75 | 1650 | 4400 | ||||
| SN-XDYW-1600-1.0 | 1600 | 1.0 | 1950x1750 | 1500 | 4300 | AHx2150 | |
| SN-XDYW-1600-1.6 | 1.6 | 1600 | 4400 | ||||
| SN-XDYW-1600-1.75 | 1.75 | 1650 | 4400 |




FAQ
1. Are the elevator wire ropes durable?
The elevator wire rope has special provisions and requirements. Configuration is not only for wire rope and rated load, but also considered the size of the traction, as a result, the tensile strength of wire rope is greater than the weight of the lift. The safety factor is equipped with more than four wire rope. So it won’t break at the same time.
2. Is it dangerous for power failure suddenly during the elevator running?
If it occurs, the elevator will automatically stop due to the electrical and mechanical safety device. In case of power failure,elevator brakes will automatically taken. In addition, the power supply departments such as planned outage, prior notice are also operating.
3. Will us be hurt when it closed suddenly?
In the closing process, if people touch the hall door, the door of elevator will automatically restart without any danger. With anti clamping switch, once the gate touched, this switching action make the elevator unable to be closed and even reopened. In addition, closing force is also available here.
4. How the elevator running?
Elevators are operated with a counterweight wire rope through the (tractor) traction drive, making ups and downs on the guide rail.
5. Is the escalator installation complicated?
We believe the functions of an escalator are not necessarily proportional to the operation complexity. Therefore, escalators designed by us apply an integrated structure, so that the equipment is more precise and more efficient and allows easier and more convenient commissioning.
6. Do you have any cerifications?
Yes, we do with ISO9001 / CCC / CE Certificates for u.
|
|
High Speed Elevator Machine Room Less Elevator Load 630~1600kg Images |